dominique + serena is a multidisciplinary architectural studio founded by Dominique Hauderowicz and Kristian Ly Serena. We are especially interested in the social potentials of architecture and the build environment. 
	
	

The Ecology of Making is a proposal for EUROPAN14 (2nd prize), an international, bi-annual competition that investigates new agendas for urbanism through a series of local project sites in Europe (read more here). The 2017 theme ‘Productive Cities’ asked to investigate the notion of productivity in the urban environment, fueled by questions on how new methods of production, improved digitalization and mobility would benefit the urban experience. 
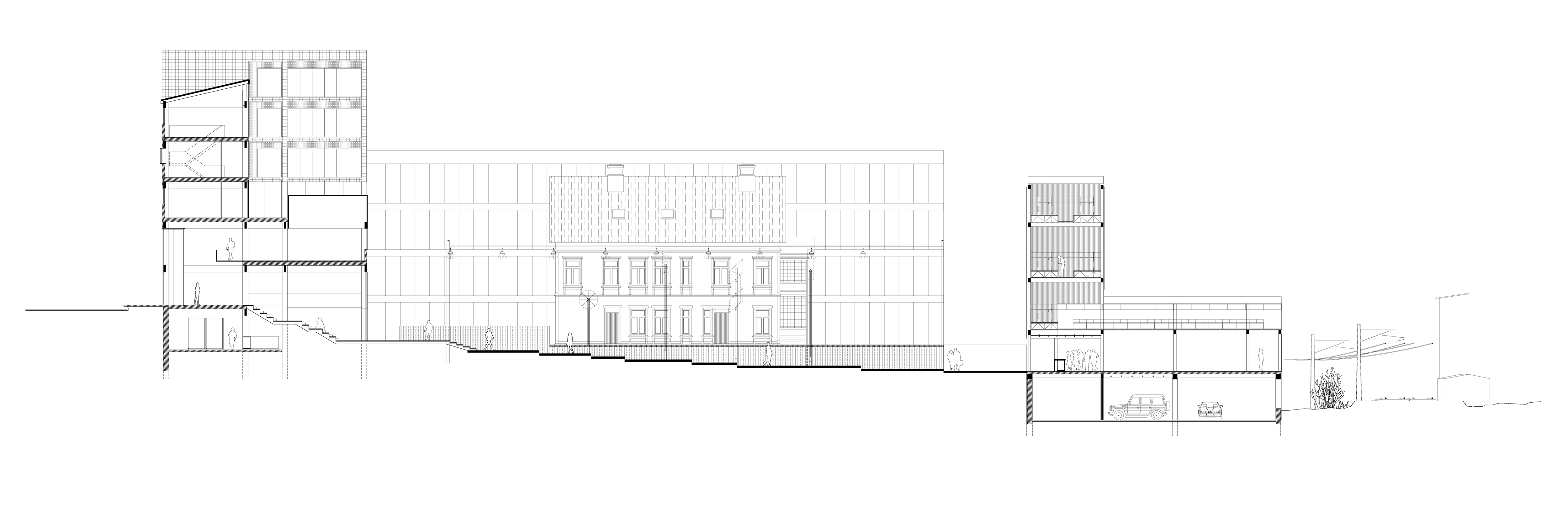
The Ecology of Making is a transformation of the ‘Technical Quarter’ in the city of Narvik, located in northern Norway. The proposal envisions a cohesive productive, urban environment informed by the specific local history and climatic conditions. It is based on a thorough analysis of the specific sprawled urban fabric of Narvik, and proposes a reduction and densification of the city center. At the scale of the quarter, the project proposes new spatial connections between the cultures of education, dwelling, labour and recreation. Through a series of strategic transformations the existing buildings are woven together with the surrounding, public landscape, allowing for otherwise hidden programs to come in touch with - and benefit from - the public.
By blurring the borders between leisure and work; learning, dwelling, recreation and research the proposal seeks to counteract the mono-functional planning dominant in contemporary urban development and showcase how a integrated urbanity may lead to a more creative production and a more holistic way of life.
The Ecology of Making is a transformation of the ‘Technical Quarter’ in the city of Narvik, located in northern Norway. The proposal envisions a cohesive productive, urban environment informed by the specific local history and climatic conditions. It is based on a thorough analysis of the specific sprawled urban fabric of Narvik, and proposes a reduction and densification of the city center. At the scale of the quarter, the project proposes new spatial connections between the cultures of education, dwelling, labour and recreation. Through a series of strategic transformations the existing buildings are woven together with the surrounding, public landscape, allowing for otherwise hidden programs to come in touch with - and benefit from - the public.
By blurring the borders between leisure and work; learning, dwelling, recreation and research the proposal seeks to counteract the mono-functional planning dominant in contemporary urban development and showcase how a integrated urbanity may lead to a more creative production and a more holistic way of life.
An Ecology of Making 
Contribution to the EUROPAN14 competition under the theme ‘Productive Cities’.
Narvik, Norway, 2017
Awarded 2nd prize.
![]()
![]()
Contribution to the EUROPAN14 competition under the theme ‘Productive Cities’.
Narvik, Norway, 2017
Awarded 2nd prize.







“Making doesn’t stop when you leave an office. Making begins in the street: It flowers in conversation and observation. 
A productive city is a place, that sets one free to seek for moments to thrive. The city must give space and opportunity for this search, allow for one to wander trough and talk and settle down.
A productive city is not a city of buildings, but a city of spaces for the cultures of making.”
	
A productive city is a place, that sets one free to seek for moments to thrive. The city must give space and opportunity for this search, allow for one to wander trough and talk and settle down.
A productive city is not a city of buildings, but a city of spaces for the cultures of making.”