dominique + serena is a multidisciplinary architectural studio founded by Dominique Hauderowicz and Kristian Ly Serena. We are especially interested in the social potentials of architecture and the build environment.
Looking to create a new nordic destination for the Guggenheim Museum, the Salomon R. Guggenheim Foundation in 2014 initiated what became the world’s largest architecture competition to date, receiving 1715 proposals from 77 countries.
Asking competitors to come up with new models for the Guggenheim, the proposal for the Guggenheim City was awarded with an honorable mention.
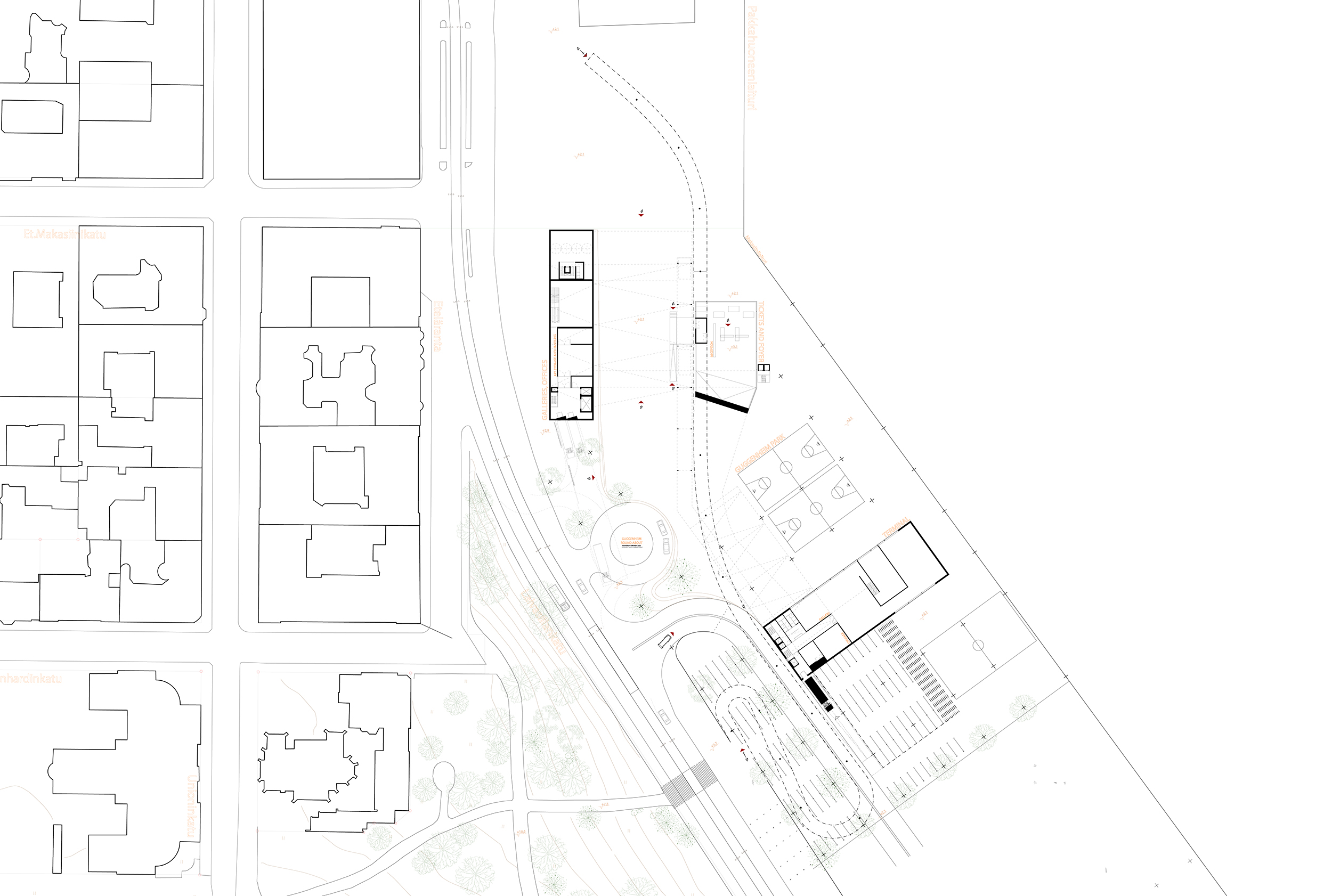
The proposal for the Guggenheim City envisions a new perspective for the cultural institution by avoiding the introvert, the iconic and the elite usually associated with the Guggenheim. Through the composition of different interior and exterior spaces the museum is constructed as an actual extension of the city of Helsinki, capable of mediating between formal and informal culture, art and recreation, interior and urbanity. Museum and city is woven together to form a lively community that reintroduces the harbor front as an important place in the city: A space rich and diverse enough to grasp the continuous development of numerous Helsinki lifestyles. In doing so, the Guggenheim City offers multiple and flexible possibilities for continuous gallery flows, new public infrastructures and urban recreational spaces that change meaning according to climatic and functional necessity.
Welcome to the Guggenheim City!
Asking competitors to come up with new models for the Guggenheim, the proposal for the Guggenheim City was awarded with an honorable mention.
The proposal for the Guggenheim City envisions a new perspective for the cultural institution by avoiding the introvert, the iconic and the elite usually associated with the Guggenheim. Through the composition of different interior and exterior spaces the museum is constructed as an actual extension of the city of Helsinki, capable of mediating between formal and informal culture, art and recreation, interior and urbanity. Museum and city is woven together to form a lively community that reintroduces the harbor front as an important place in the city: A space rich and diverse enough to grasp the continuous development of numerous Helsinki lifestyles. In doing so, the Guggenheim City offers multiple and flexible possibilities for continuous gallery flows, new public infrastructures and urban recreational spaces that change meaning according to climatic and functional necessity.
Welcome to the Guggenheim City!
Guggenheim City,
Guggenheim Helsinki Design Competition
Salomon R. Guggenheim Foundation, 2014.
Awarded with an honorable mention.
More here ︎
In collaboration with MGG Architects in Transit by María Gomez-Guillamon.
Guggenheim Helsinki Design Competition
Salomon R. Guggenheim Foundation, 2014.
Awarded with an honorable mention.
More here ︎
In collaboration with MGG Architects in Transit by María Gomez-Guillamon.












